Инсталляция для системы унитаз-биде HATRIA G-FULL YXSN01
Описание
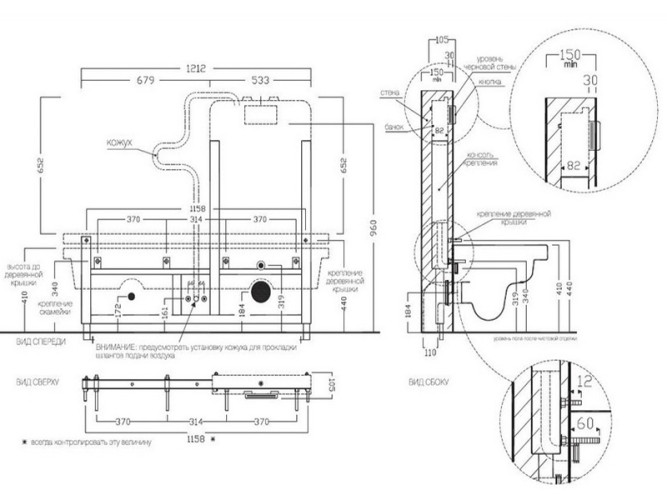
Система инсталляции G-FULL HATRIA G-FULL YXSN01 реверсивная, для установки подвесных систем G-FULL на стену из гипсокартона, ширина 120 см. Патрубок в комплекте. Бачок скрытого монтажа для унитаза необходимо приобретать отдельно.
Характеристики
Коллекция
G-FULL
Назначение
Для биде, Для унитаза
Артикул
YXSN01
Страна
Италия
Ширина, см
15
Глубина, см
120
Высота, см
122
Гарантия
1 год
Вес в упаковке, кг
35
Материал
Латунь
Объем в упаковке, м3
0,1548
Стиль
Современный
Отзывы

Товары из коллекции






































