Ванна с гидромассажем TREESSE BIS V529E/V529F/V529S/MIX/BIG
Описание
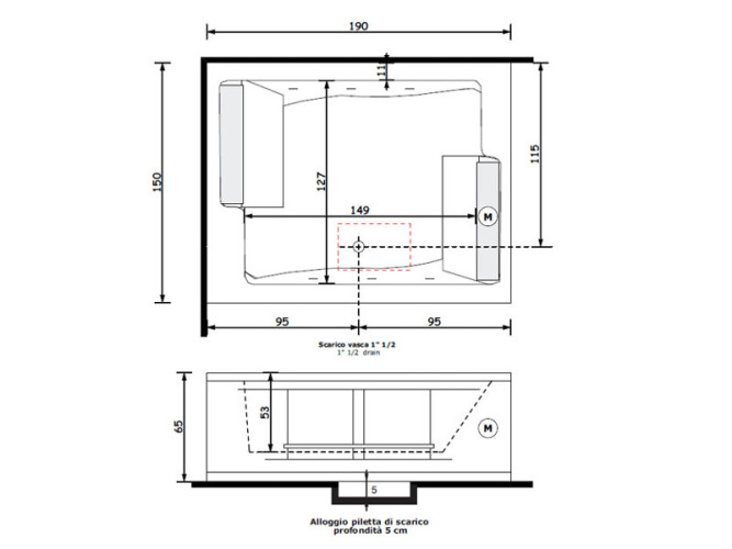
Ванна с гидромассажем TREESSE BIS V529E/V529F/V529S/MIX/BIG и аэромассажем, цифровая система, система дезинфекции, размер 150x190 см, комплектация DWA, 2 подголовника белого цвета, 2 ручки, уровневый датчик, смеситель на борт ванны MIX, большой строенный каскад, фронтальная и боковая панели, установка 2(DX), хром.
Характеристики
Артикул
V529E/V529F/V529S/MIX/BIG
Коллекция
BIS
Страна
Италия
Ширина, см
190
Глубина, см
150
Высота, см
65
Гарантия
1 год
Вес в упаковке, кг
100
Объем в упаковке, м3
1,8525
Цвет по палитре
Белый
Отверстие под смеситель
Три
Объем, литры
480
Количество мест
Двухместная
Функции
Аэромассаж, Гидромассаж
Установка
Угловая
Материал
Акрил
Отзывы

Товары из коллекции










